产品介绍
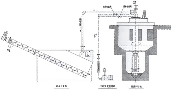
旋流沉砂器一般用于城市生活污水处理厂的初沉池前,细格栅之后,分离污水中的较大无机颗粒(一般直径大于0.5mm)。大部分采用空气提砂,若采用砂泵提砂时一般对磨损要求较高。钢制池体适用于中小型流量使用。
规格:
| 型 号 | 处理水量 | 进水压力 | 平均除砂率 | 进水口DN1 | 出水口DN2 | 排污口DN3 |
| m3/h | MPa | % | h | mm | mm | |
| XL-20 | 20 | >0.2 | >96 | 850 | 650 | 25 |
| XL-30 | 30 | >0.2 | >96 | 960 | 650 | 40 |
| Xl-40 | 40 | >0.2 | >95 | 1150 | 1080 | 50 |
| XL-60 | 60 | >0.25 | >95 | 1150 | 1080 | 50 |
| XL-70 | 70 | >0.25 | >92 | 1580 | 1300 | 80 |
| XL-80 | 80 | >0.25 | >92 | 1580 | 1300 | 80 |
| XL-100 | 100 | >0.3 | >90 | 1760 | 1350 | 100 |
| XL-150 | 150 | >0.3 | >90 | 1760 | 1350 | 100 |
| XL-185 | 185 | >0.3 | >90 | 2000 | 1550 | 125 |
| XL-200 | 200 | >0.3 | >90 | 2334 | 1800 | 150 |
| XL-300 | 300 | >0.3 | >90 | 2457 | 1800 | 200 |
特点:
1.占地面积小,结构紧凑。对周围环境影响很小,卫生条件好。
2.沉砂效果受水量变化影响很小,砂水分离效果好,分离出的砂子含水率低,便于运输。
3.系统采用PLC自动控制洗砂、排砂周期,运行简单、可靠。
更多产品






